Shared Ownership
Full
Price
From
£328,000
75%
£246,000
50%
£164,000
25%
£82,000
Service
Charge
£35.32 PCM

Osgodby

Lords Close, Giggleswick, Settle, BD24 0EG

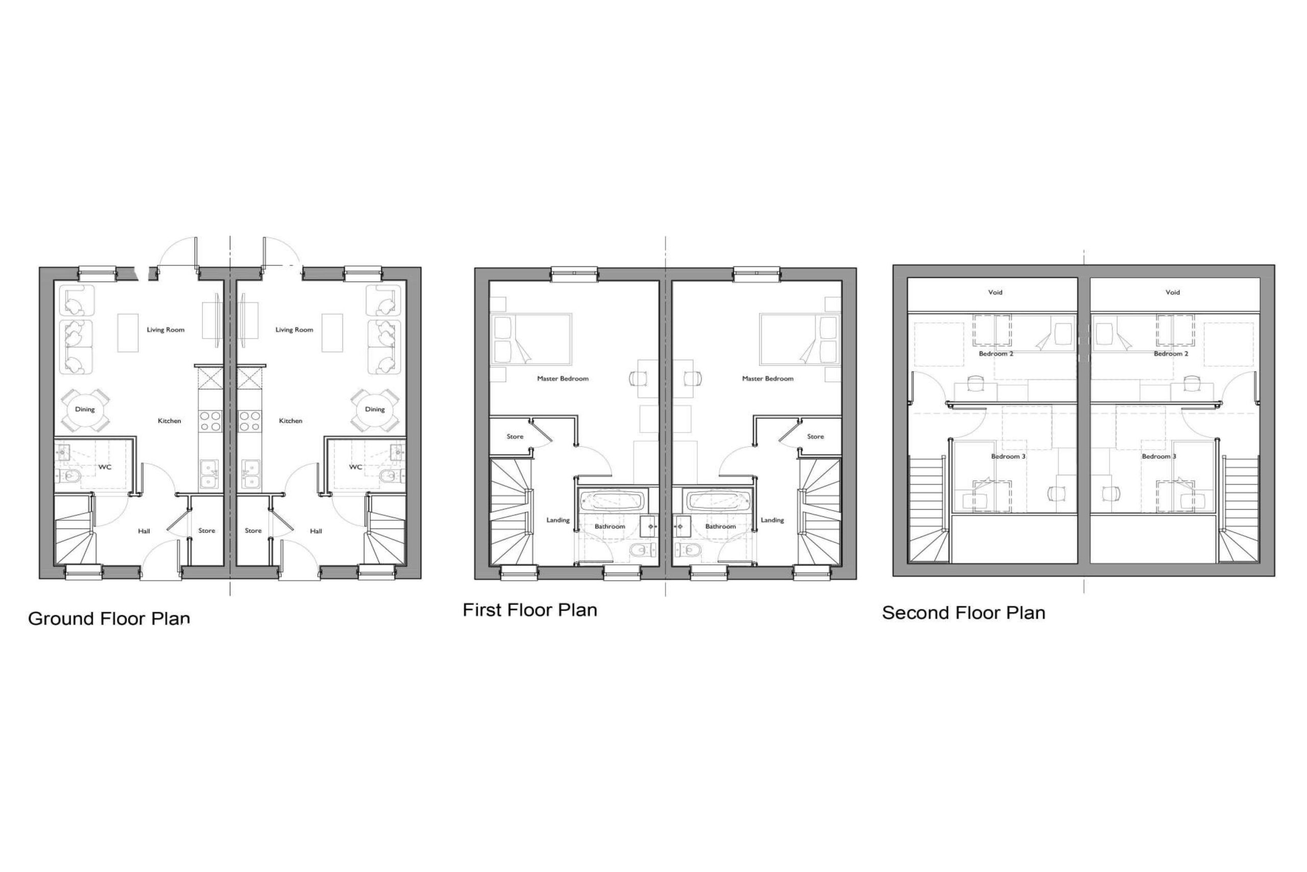
These stunning 2.5 storey, 3 bedroom energy efficient homes are constructed to the highest specifications and provide quality, contemporary family living. Each has a garden to the rear and off-road parking to the front.

 

Open plan living is at the heart of this home, with a large kitchen/dining/living area that spans the ground floor.

 

The first floor has a contemporary 3 piece bathroom suite and 1 very large double bedroom.  The second floor has 2 good sized double bedrooms.

 

All the homes have a useful downstairs w/c, carpets and blinds throughout, gas central heating, smoke detectors, stylish UPVC doors & windows and neutral decor throughout.

Bedrooms
x3
Bathrooms
x1
Living Rooms
x1
Gardens
x1

Additional Features

Can purchase OUTRIGHT in the future
Perfect family home
Stunning Location
Carpets and blinds throughout and £500 towards legal fees!
999 year lease
Modern stylish kitchen/dining with integrated cooking appliances
Spacious lounge
Off road parking
Images are for illustrative purposes only
Osgodby Video Tour

Enjoy a virtual tour through each beautifully designed room, discover the thoughtful layout, and experience the true sense of space this home offers.

Giggleswick, Settle, North Yorkshire and Lancashire Borders

Enjoy a tour of the incredible countryside and picturesque towns that surround Scholars Gate.

Daniel's Video Testimonial

Enjoy Daniel’s Video Testimonial

Osgodby Floor Plan
Service Charge

Snugg Homes service charge pays towards the upkeep of communal areas, grounds maintenance and buildings insurance etc.  Snugg Homes properties are houses – this means that there are limited communal areas and we can keep service charges as low as possible.

Local Connection

Applicants must have a local connection to the borough.

Key Information Documents (KID)
Energy Performance Certificate (EPC) Rating
Council Tax Band

Council Tax Band – TBC

Choose your home

Coming Soon
Available
Under Offer
On Hold
Sold
Property Type:
Osgodby
Plot
Type
Price
Service Charge
Status
Features
Phase 1 (Due Spring 2025)
Plot 5
Semi Detached
Full Price £328,000
£35.32 PCM
Available
Icon
Carpets throughout
Plot 6
Semi Detached
Sold
Icon
Carpets throughout
Apply Now!
For a Snugg Homes property
Osgodby
Lords Close, Giggleswick, Settle, BD24 0EG
Osgodby
Rent Calculator

Use the affordability calculator to show you an example of what the monthly costs are buying with Help to Buy Shared Ownership or Equity Loan. You can adjust the value of the property, interest rate and length of mortgage to demonstrate how this might affect your monthly outgoings.

Get in Touch
Which plot are you interested in?
Choose a share amount
10%
Your purchase amount
103,500.00
Remaining value on property
34,500.00
Monthly service charge
TBC
Rent PCM (excluding Service Charge)
7,906.25
Rent PCM (including Service Charge)
7,906.25
Feature development