Shared Ownership
Full
Price
From
TBC*
Service
Charge
TBC

Peel

Riverside Walk, Keppel Lane, Garstang

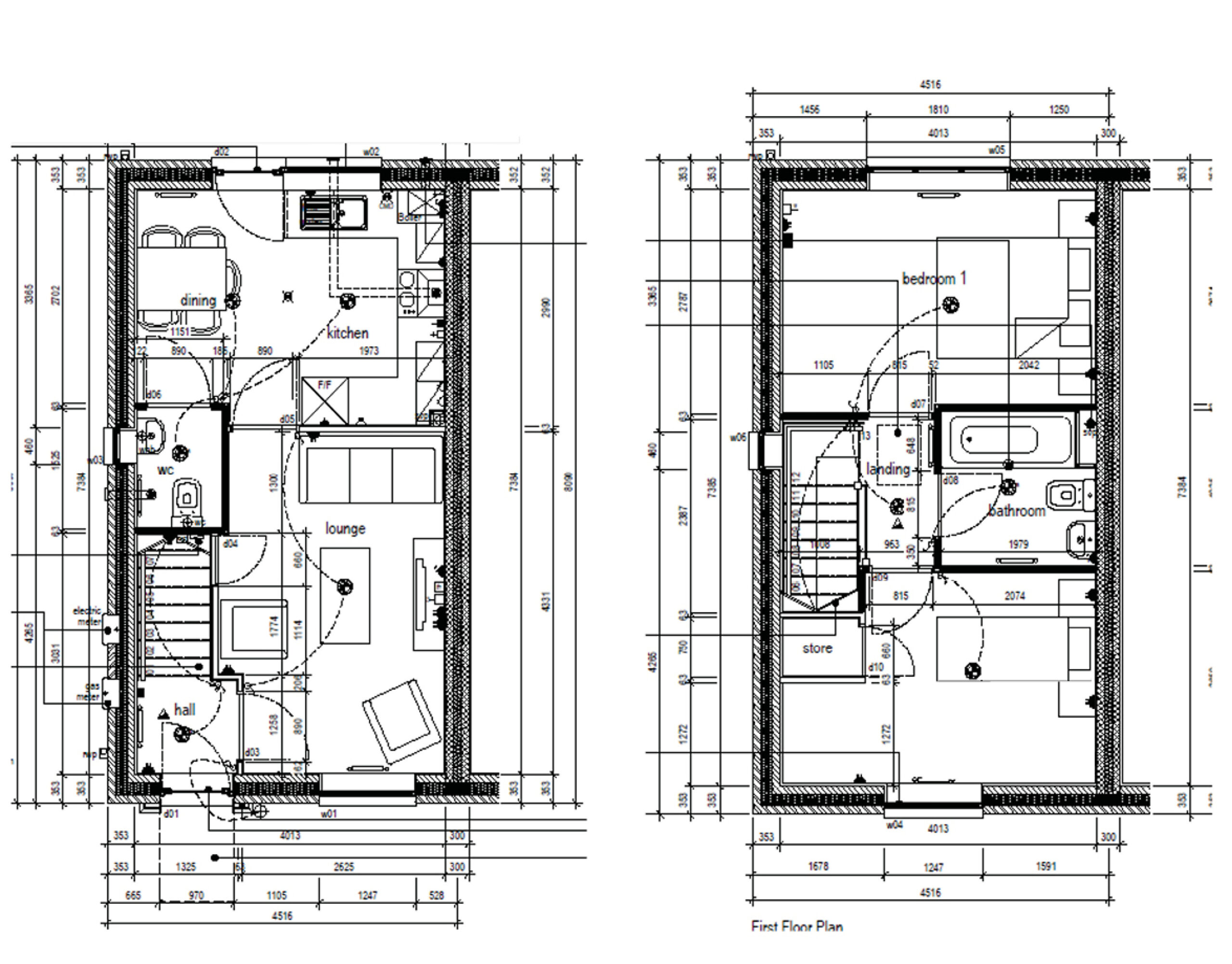
These stunning 2 bedroom mews homes are constructed to the highest specifications and provide quality, contemporary living.  These beautifully appointed houses boast a modern fitted kitchen/diner to the rear and a spacious lounge to the front.  Each property has a contemporary 3 piece bathroom, 2 large double bedrooms and extra storage.

 

All this is complemented by a landscaped garden, off-road parking, gas central heating, smoke detectors, stylish uPVC doors & windows and neutral decor throughout.

Bedrooms
x2
Bathrooms
x1
Living Rooms
x1
Gardens
x1

Additional Features

Local connection required
Can purchase OUTRIGHT in the future
No ground rent charges
999 year lease
Energy efficient
Modern stylish kitchen with integrated cooking appliances
Off road parking
Host of local amenities nearby
Images are for illustrative purposes only
Peel 2 bed 3 person floor plan
Service Charge

Snugg Homes service charge pays towards the upkeep of communal areas, grounds maintenance and buildings insurance etc.  Snugg Homes properties are houses – this means that there are limited communal areas and we can keep service charges as low as possible.

Local Connection Requirement

There is a local connection requirement for this development.

Key Information Documents (KID's)

Shared Ownership KID

KID Plot 34

KID Plot 35

KID Plot 37

KID Plot 38

 

Energy Performance Certificate (EPC) Rating

EPC Rating Plot 34

EPC Rating Plot 35

EPC Rating Plot 37

EPC Rating Plot 38

Council Tax Band

Council Tax Band – TBC

Choose your home

Coming Soon
Available
Under Offer
On Hold
Sold
Property Type:
Peel
Plot
Type
Price
Service Charge
Status
Phase 2 (Due Autumn 2026)
Plot 34
Mid Mews
Full Price £
Coming Soon
Plot 35
End Mews
Full Price £
Coming Soon
Plot 37
Mid Mews
Full Price £
Coming Soon
Plot 38
End Mews
Full Price £
Coming Soon
Apply Now!
For a Snugg Homes property
Peel
Riverside Walk, Keppel Lane, Garstang
Peel
Rent Calculator

Use the affordability calculator to show you an example of what the monthly costs are buying with Help to Buy Shared Ownership or Equity Loan. You can adjust the value of the property, interest rate and length of mortgage to demonstrate how this might affect your monthly outgoings.

Get in Touch
Which plot are you interested in?

There aren't any plots to display.

Choose a share amount
10%
Your purchase amount
103,500.00
Remaining value on property
34,500.00
Monthly service charge
TBC
Rent PCM (excluding Service Charge)
7,906.25
Rent PCM (including Service Charge)
7,906.25