Shared Ownership
Full
Price
From
£265,000
75%
£198,750
50%
£132,500
25%
£66,250
Service
Charge
£17.82 - £20.75 PCM

The Dalby

Rolleston Drive, Arnold, NG5 7JP

The Dalby is a perfect family home. The ground floor provides a great space for modern living, some plots have a contemporary kitchen and open lounge/dining area, whereas some plots have an open kitchen/dining/lounge floor plan – see individual plots for details. French doors bathe the living room in daylight and lead out to the rear garden. A useful downstairs W/C and additional storage finish the ground floor. The first floor boasts 2 good sized single bedrooms and a master (double bedroom) with en-suite. There is also a contemporary family bathroom and further additional storage space.

 

 

Bedrooms
x3
Bathrooms
x2
Living Rooms
x1
Gardens
x1

Additional Features

Can purchase OUTRIGHT in the future
Perfect Family Home
Modern stylish open plan living
French Doors to the garden
Master Bedroom with en-suite
Off road parking for 2 cars
Modern stylish kitchen with integrated cooking appliances
Photo's are for illustrative purposes only & measurements are to be used as a guide only
999 year lease
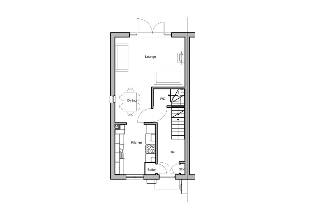
Dalby 'Closed Kitchen' ground floor plan - Modular
Dalby 'Open Kitchen' ground floor plan - Modular
Dalby first floor plan - Modular
Bedroom 1
117.3 ft²
En-suite
30.1 ft²
Bedroom 2
80.7 ft²
Bedroom 3
80.7 ft²
Family Bathroom
45.2 ft²
Dalby Floor Plan - Traditional
Video Tour - Dalby, Open Plan Home, Modular Build
Video Tour - Dalby, Closed Plan Home, Modular Build
Red Line Plans

Red Line Plans Plot 2

Red Line Plans Plot 3

Red Line Plans Plot 6

Red Line Plans Plot 9

Red Line Plans Plot 10

Red Line Plans Plot 13

Red Line Plans Plot 14

Red Line Plans Plot 30

Red Line Plans Plot 53

Red Line Plans Plot 91

Red Line Plans Plot 97

Red Line Plans Plot 99

Red Line Plans Plot 102

Red Line Plans Plot 116

Red Line Plans Plot 117

Red Line Plans Plot 118

Red Line Plans Plot 119

Red Line Plans Plot 129

Service Charge & Payments

The service charge for this house type on Phase 4 is £17.87.

 

The Snugg Homes service charge pays towards the upkeep of communal areas, grounds maintenance and buildings insurance etc.  Snugg Homes properties are houses – this means that there are limited communal areas and we can keep service charges as low as possible.

 

Please note, your home will be at risk if you fail to keep up your rent or mortgage payments.

Key Information Documents

KID Plots 2 & 3

KID Plot 6

KID Plot 9 & 10

KID Plots 13 & 14

KID Plot 30

KID Plot 53

KID Plot 91

KID Plot 97

KID Plot 99

KID Plot 102

KID Plot 114

KID Plot 116 & 117

KID Plot 118

KID Plot 119

Shared Ownership KID 2021_2026

 

 

Energy Performance Certificate (EPC) Rating

EPC rating

Council Tax Band

Council Tax Band – TBC

Choose your home

Coming Soon
Available
Under Offer
On Hold
Sold
Property Type:
The Dalby
Plot
Type
Price
Service Charge
Status
Features
Phase 1
Plot 53
Semi Detached
Sold
Icon
Drive 2 spaces
Icon
Closed kitchen & electric hob
Phase 2
Plot 91
Semi Detached
Sold
Icon
Drive 2 spaces
Icon
Closed Kitchen
Phase 3 (Due Spring 2026)
Plot 2
Semi Detached
Full Price £268,250
£20.75 PCM
Under Offer
Icon
Drive 2 spaces
Icon
Closed Kitchen
Plot 3
Semi Detached
Full Price £268,250
£17.82 PCM
Under Offer
Icon
Drive 2 spaces
Icon
Open Kitchen
Plot 13
Semi Detached
Sold
Icon
Drive 2 spaces
Icon
Open Kitchen
Plot 14
Semi Detached
Full Price £268,500
£17.82 PCM
Under Offer
Icon
Drive 2 spaces
Icon
Open Kitchen
Plot 30
Semi Detached
Sold
Icon
Drive 2 spaces
Icon
Open Kitchen
Phase 4 (Due Early 2026)
Plot 6
Semi Detached
Sold
Icon
Drive 2 spaces
Icon
Open Kitchen
Plot 9
Semi Detached
Full Price £268,500
£17.87 PCM
Under Offer
Icon
Drive 2 spaces
Icon
Open Kitchen
Plot 10
Semi Detached
Sold
Icon
Drive 2 spaces
Icon
Open Kitchen
Plot 97
Semi Detached
Full Price £265,250
£17.87 PCM
Under Offer
Icon
Drive 2 spaces
Icon
Open Kitchen
Phase 5 (Due Summer 2026)
Plot 99
Semi Detached
Full Price
Coming Soon
Icon
Drive 2 spaces
Icon
Open Kitchen
Plot 102
Semi Detached
Full Price
Coming Soon
Icon
Drive 2 spaces
Icon
Open Kitchen
Plot 116
Semi Detached
Full Price
Coming Soon
Icon
Drive 2 spaces
Icon
Open Kitchen
Plot 117
Semi Detached
Full Price
Coming Soon
Icon
Drive 2 spaces
Icon
Open Kitchen
Plot 118
Semi Detached
Full Price
Coming Soon
Icon
Drive 2 spaces
Icon
Open Kitchen
Plot 119
Semi Detached
Full Price
Coming Soon
Icon
Drive 2 spaces
Icon
Open Kitchen
Plot 129
Semi Detached
Full Price
Coming Soon
Icon
Drive 2 spaces
Icon
Open Kitchen
Apply Now!
Via the website
The Dalby
Rolleston Drive, Arnold, NG5 7JP
The Dalby
Rent Calculator

Use the affordability calculator to show you an example of what the monthly costs are buying with Help to Buy Shared Ownership or Equity Loan. You can adjust the value of the property, interest rate and length of mortgage to demonstrate how this might affect your monthly outgoings.

Contact SOWN
Which plot are you interested in?
Choose a share amount
10%
Your purchase amount
103,500.00
Remaining value on property
34,500.00
Monthly service charge
TBC
Rent PCM (excluding Service Charge)
7,906.25
Rent PCM (including Service Charge)
7,906.25