Shared Ownership
Full
Price
From
£227,000
75%
£170,250
50%
£113,500
25%
£56,750
Service
Charge
£36.19 PCM

Wilberforce

Riverside Walk, Keppel Lane, Garstang, PR3 1PB

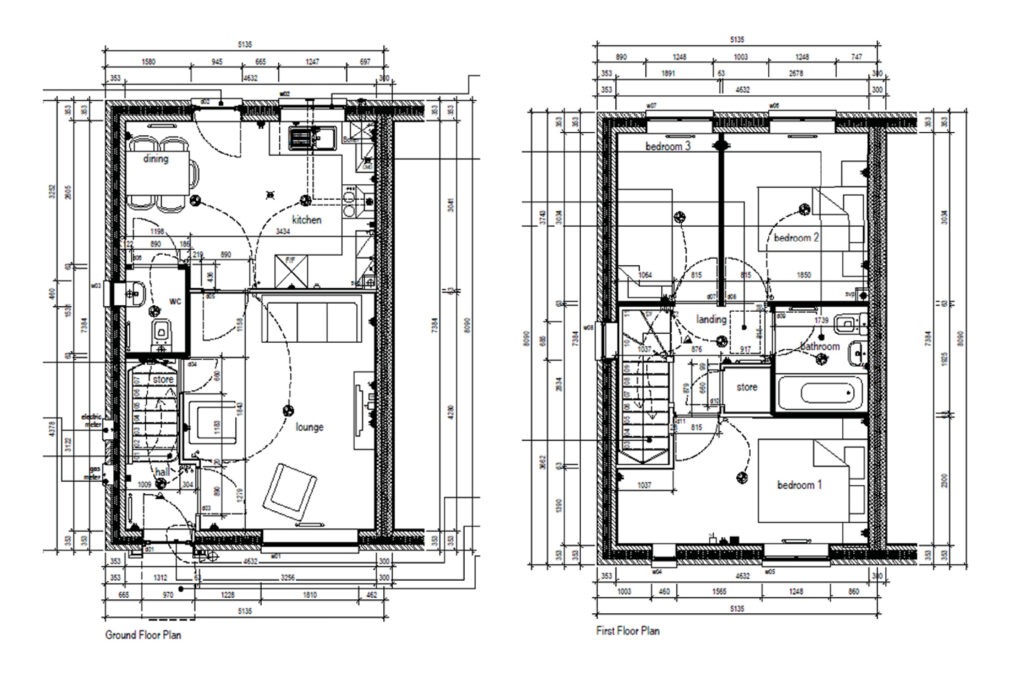
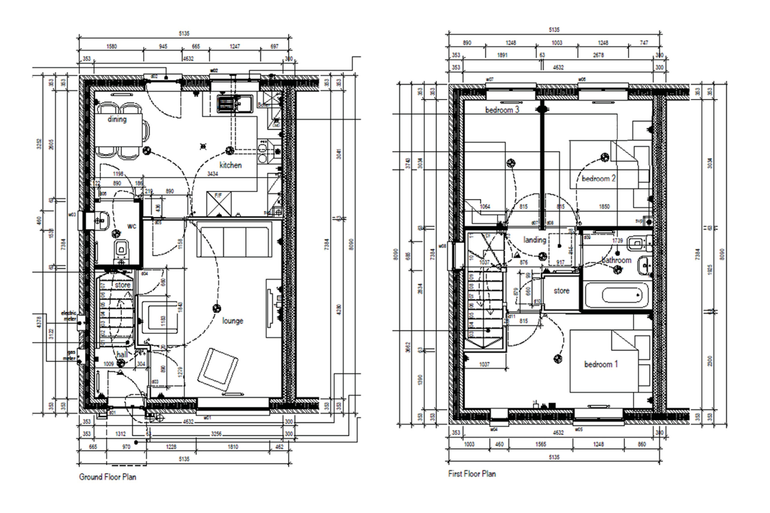
These homes are designed to a very high specification and are perfect for first time buyers and growing families. Even the landscaping around the properties has been designed to preserve and compliment the natural environment. They boast a contemporary kitchen/dining room with integrated appliances, a spacious lounge to the front and useful downstairs W/C.

 

The first floor has a 3 piece bathroom suite, 2 double bedrooms, a single and extra storage space.  All this is complemented by white gloss painted panel doors, white gloss architrave and skirting, gas central heating, mains powered smoke detectors, stylish uPVC doors & windows, integrated cooking appliances, landscaped garden and off road parking.

Bedrooms
x3
Bathrooms
x1
Living Rooms
x1
Gardens
x1

Additional Features

Perfect family home
Can purchase OUTRIGHT in the future
No ground rent charges
Modern fitted kitchen with integrated cooking appliances
Off road parking
Energy efficient
Landscaped garden
Excellent Location
Images are for illustrative purposes only
Wilberforce 3 bed 4 person floor plan
Riverside Walk, Wilberforce Walkthrough Video

Wilberforce Walkthrough Video

Garstang Walkthrough Video

Video highlighting Garstang and the immediate area surrounding Riverside Walk.

Service Charge & Payments

Snugg Homes service charge pays towards the upkeep of communal areas, grounds maintenance and buildings insurance etc.  Snugg Homes properties are houses – this means that there are limited communal areas and we can keep service charges as low as possible.

 

Please note, your home will be at risk if you fail to keep up your rent or mortgage payments.

Key Information Documents

Shared Ownership KID

KID Plots 43 & 44

KID Plots 26

KID Plots 27

KID Plots 28

KID Plots 29

KID Plots 33 & 36

Energy Performance Certificate (EPC) Rating

EPC rating – Plot 26

EPC rating – Plot 27

EPC rating – Plot 28

EPC rating – Plot 29

EPC rating – Plot 33

EPC rating – Plot 36

EPC rating – Plot 43

EPC rating – Plot 44

 

Council Tax Band

Council Tax Band –

Choose your home

Coming Soon
Available
Under Offer
On Hold
Sold
Property Type:
Wilberforce
Plot
Type
Price
Service Charge
Status
Phase 1 (Due Spring 2026)
Plot 43
Semi Detached
Full Price £227,000
£36.19 PCM
On Hold
Plot 44
Semi Detached
Full Price £227,000
£36.19 PCM
On Hold
Phase 2 (Due Autumn 2026)
Plot 33
End Mews
Full Price £
Coming Soon
Plot 36
End Mews
Full Price £
Coming Soon
Phase 3 (Due Winter 2026)
Plot 26
Semi Detached
Full Price £
Coming Soon
Plot 27
Semi Detached
Full Price £
Coming Soon
Plot 28
Semi Detached
Full Price £
Coming Soon
Plot 29
Semi Detached
Full Price £
Coming Soon
Apply Now!
For a Snugg Homes property
Wilberforce
Riverside Walk, Keppel Lane, Garstang, PR3 1PB
Wilberforce
Rent Calculator

Use the affordability calculator to show you an example of what the monthly costs are buying with Help to Buy Shared Ownership or Equity Loan. You can adjust the value of the property, interest rate and length of mortgage to demonstrate how this might affect your monthly outgoings.

Get in Touch
Which plot are you interested in?
Choose a share amount
10%
Your purchase amount
103,500.00
Remaining value on property
34,500.00
Monthly service charge
TBC
Rent PCM (excluding Service Charge)
7,906.25
Rent PCM (including Service Charge)
7,906.25