Shared Ownership
Full
Price
From
£311,000
75%
£233,250
50%
£155,500
25%
£77,750
Service
Charge
£23.63 - £23.67 PCM

The Rockingham

Rolleston Drive, Arnold, NG5 7JP

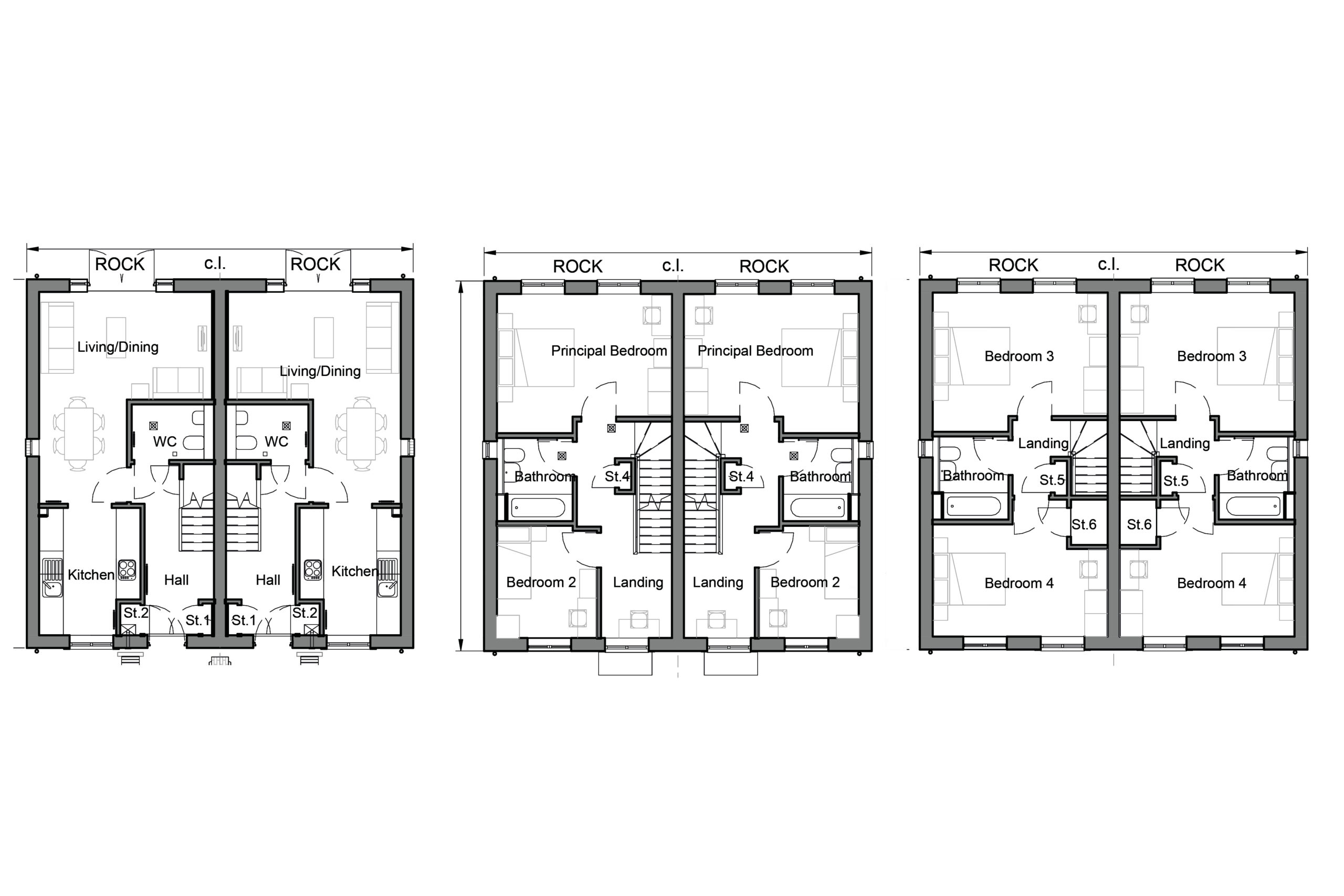
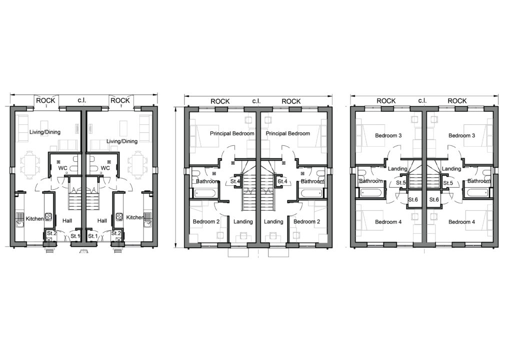
The Rockingham is a luxurious 4-bedroom family home, spread over 3 floors.  The ground floor provides a modern open plan kitchen/dining area and lounge (some plots have the ‘closed kitchen floor plan’ – see individual plots for details).  French doors lead out to the rear garden.  A useful downstairs W/C and additional storage finish the ground floor.  The first floor boasts 1 double and 1 single bedroom and a contemporary family bathroom and further additional storage space.  On the top floor of the house there are a further 2 double bedrooms and another generous family bathroom.

Bedrooms
x4
Bathrooms
x2
Living Rooms
x1
Gardens
x1

Additional Features

Can purchase OUTRIGHT in the future
Perfect Family Home
Modern stylish kitchen with integrated cooking appliances
French Doors to the garden
Off road parking for 3 cars
Ideal for commuters
Additional storage
Great location
Photo's are for illustrative purposes only & measurements are to be used as a guide only
Rockingham 'open kitchen' ground floor plan - Modular
Lounge
153.9 ft²
Kitchen/Dining room
181.2 ft²
W/C
28 ft²
Storage (total)
32.3 ft²
Rockingham first floor plan - Modular
Bedroom 1
157.2 ft²
Bedroom 2
134.5 ft²
Family Bathroom
45.2 ft²
Rockingham second floor plan - Modular
Bedroom 3
170.1 ft²
Bedroom 4
150.7 ft²
Family Bathroom
45.2 ft²
Rockingham 'closed kitchen' ground floor plan - Modularr
Rockingham Semi detached Floor Plan - Traditional
Video Tour - Rockingham, Modular, Open Plan Kitchen
Service Charge & Payments

The service charge for this house type on Phase 4 is £23.67.

 

Snugg Homes service charge pays towards the upkeep of communal areas, grounds maintenance and buildings insurance etc.  Snugg Homes properties are houses – this means that there are limited communal areas and we can keep service charges as low as possible.

 

Please note, your home will be at risk if you fail to keep up your rent or mortgage payments.

Energy Performance Certificate (EPC) Rating

EPC Rating –

Council Tax Band

Council Tax Band – TBC

Choose your home

Coming Soon
Available
Under Offer
On Hold
Sold
Property Type:
The Rockingham
Plot
Type
Price
Service Charge
Status
Features
Phase 3 (Due Spring 2026)
Plot 46
Semi Detached
Full Price £310,000
£23.63 PCM
Under Offer
Icon
Drive 3 spaces
Icon
Closed Kitchen
Plot 47
Semi Detached
Full Price £310,000
£23.63 PCM
Under Offer
Icon
Drive 3 spaces
Icon
Open Kitchen
Phase 4 (Due Spring 2026)
Plot 18
Semi Detached
Full Price £311,000
£23.67 PCM
Under Offer
Icon
Drive 3 spaces
Icon
Closed Kitchen
Plot 19
Semi Detached
Full Price £311,000
£23.67 PCM
Under Offer
Icon
Drive 3 spaces
Icon
Open Kitchen
Plot 23
Semi Detached
Full Price £312,500
£23.67 PCM
Under Offer
Icon
Drive 3 spaces
Icon
Open Kitchen
Plot 24
Semi Detached
Full Price £312,500
£23.67 PCM
Under Offer
Icon
Drive 3 spaces
Icon
Open Kitchen
Apply Now!
Via the website
The Rockingham
Rolleston Drive, Arnold, NG5 7JP
The Rockingham
Rent Calculator

Use the affordability calculator to show you an example of what the monthly costs are buying with Help to Buy Shared Ownership or Equity Loan. You can adjust the value of the property, interest rate and length of mortgage to demonstrate how this might affect your monthly outgoings.

Contact SOWN
Which plot are you interested in?
Choose a share amount
10%
Your purchase amount
103,500.00
Remaining value on property
34,500.00
Monthly service charge
TBC
Rent PCM (excluding Service Charge)
7,906.25
Rent PCM (including Service Charge)
7,906.25