Shared Ownership
Full
Price
From
£220,000
75%
£165,000
50%
£110,000
25%
£55,000
Service
Charge
£15.62 - £18.72 PCM

Stonecross Type D

Wharton Road, Winsford, CW7 3AD

These stunning energy efficient homes are constructed to the highest specifications and provide quality, contemporary family living.  With families at their heart, each of these Type D properties boast a large lounge/diner with a separate kitchen and French doors to the garden that flood the home with light. In addition, each property benefits from a downstairs W/C, extra storage, a contemporary three piece bathroom suite, 3 well proportioned bedrooms (2 doubles and a single), a landscaped garden, off-road parking and Solar Panels.

Bedrooms
x3
Bathrooms
x1
Living Rooms
x1
Gardens
x1

Additional Features

Energy efficient
Perfect family home
Can purchase OUTRIGHT in the future
High specification fixtures & fittings
999 year lease
Integrated Cooking Appliances
French doors leading to the landscaped garden
Solar Panels
Images are for illustrative purposes only
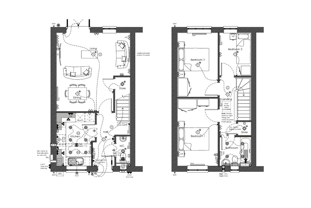
Type D floor Plan
Type D Floor Plan Plot 2
Type D First Floor Plan Plots 3 & 4
Type D Walk Through Video - Stonecross Vale

Take a virtual walk through every stunning room, explore the layout, and get a real feel for the space.

Service Charge

Snugg Homes service charge pays towards the upkeep of communal areas, grounds maintenance and buildings insurance etc.  Snugg Homes properties are houses – this means that there are limited communal areas and we can keep service charges as low as possible.

Council Tax Band

Council Tax Band – C

Choose your home

Coming Soon
Available
Under Offer
On Hold
Sold
Property Type:
Stonecross Type D
Plot
Type
Price
Service Charge
Status
Features
Due Winter 24
Plot 2
Semi Detached
Sold
Plot 3
Semi Detached
Sold
Plot 4
Semi Detached
Sold
Phase 2 (Due Winter 2025)
Plot 187
Semi Detached
Full Price £220,000
£15.62 PCM
Under Offer
Plot 188
Semi Detached
Sold
Phase 3 (Due Early 2026)
Plot 149
Semi Detached
Full Price £221,000
£15.62 PCM
Under Offer
Plot 150
Semi Detached
Full Price £220,000
£18.72 PCM
On Hold
Plot 177
Semi Detached
Full Price £220,000
£15.62 PCM
Under Offer
Plot 178
Semi Detached
Full Price £220,000
£18.72 PCM
Under Offer
Plot 179
Semi Detached
Full Price £220,000
£18.72 PCM
Under Offer
Plot 180
Semi Detached
Full Price £220,000
£18.72 PCM
Available
Phase 4 (Due Spring 2026)
Plot 153
Semi Detached
Full Price £220,000
£18.72 PCM
Available
Plot 154
Semi Detached
Full Price £220,000
£18.72 PCM
Available
Plot 155
Semi Detached
Full Price £220,000
£18.72 PCM
Available
Plot 156
Semi Detached
Full Price £220,000
£15.62 PCM
Under Offer
Plot 170
Semi Detached
Full Price £220,000
£18.72 PCM
On Hold
Plot 171
Semi Detached
Full Price £220,000
£18.72 PCM
Available
Plot 172
Semi Detached
Full Price £221,000
£15.62 PCM
Under Offer
Phase 6 (Due Summer 2026)
Plot 165
Semi Detached
Full Price £220,000
£18.72 PCM
Available
Plot 166
Semi Detached
Full Price £221,000
£18.72 PCM
Under Offer
Icon
Large Garden
Plot 167
Semi Detached
Full Price £223,000
£18.72 PCM
Under Offer
Icon
Very Large Garden
Plot 168
Semi Detached
Full Price £220,000
£18.72 PCM
On Hold
Phase 7 (Due Autumn 2026)
Plot 143
Semi Detached
Full Price £
Coming Soon
Plot 144
Semi Detached
Full Price £
Coming Soon
Apply Now!
For a Snugg Homes property
Stonecross Type D
Wharton Road, Winsford, CW7 3AD
Stonecross Type D
Rent Calculator

Use the affordability calculator to show you an example of what the monthly costs are buying with Help to Buy Shared Ownership or Equity Loan. You can adjust the value of the property, interest rate and length of mortgage to demonstrate how this might affect your monthly outgoings.

Get in Touch
Which plot are you interested in?
Choose a share amount
10%
Your purchase amount
103,500.00
Remaining value on property
34,500.00
Monthly service charge
TBC
Rent PCM (excluding Service Charge)
7,906.25
Rent PCM (including Service Charge)
7,906.25